The Modern Industrial
Combining Strength and Style
Modern Elegance Meets Industrial Flair

Conceptualizing the Vision
The journey to creating this stunning staircase was marked by a series of collaborative discussions and design explorations with the client. Initially, the concept revolved around a central structural pillar that would support the switchback design, creating a striking industrial centerpiece for the space.

However, the client's desire for a sleeker, more modern aesthetic prompted us to reimagine the staircase's structure and visual impact. The final concept took shape by embedding the structural support into the wall, eliminating visible supports and achieving a breathtaking floating effect that defies physics.
A Bold Structural Choice
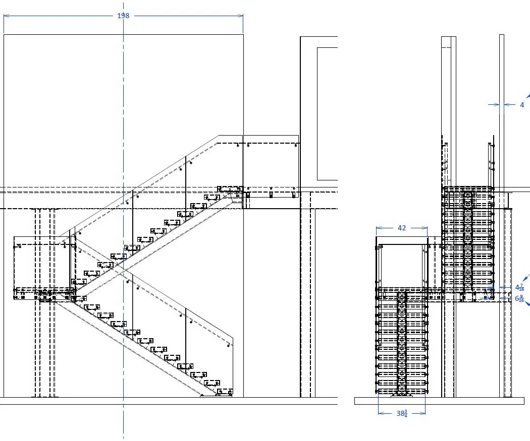
The 8" x 8" x 1/2" structural steel HSS tube spine is an exceptionally large component, rarely seen in luxury staircase design. Its sheer size, typically reserved for industrial applications, ensures the staircase's strength while adding an industrial flair.

By embedding this robust spine into the wall, we achieved a minimalist floating effect, contrasting its scale with the illusion of weightlessness—a defining feature of this unique design.
Engineering & Collaboration
The staircase's 3" thick treads are crafted to support custom tilework, seamlessly blending practicality with style. Sleek glass railings and minimalist black steel handrails enhance its modern appeal, creating clean lines that elevate the space.

This project required close collaboration with the client. Through detailed design presentations and iterative feedback, the final result perfectly aligned with the client's vision while exceeding expectations.
Why Floating Steel Staircases?
Floating steel staircases demonstrate the versatility of steel, enabling designs that wouldn't be possible with other materials. Steel's strength supports bold, innovative features while adapting to various materials like glass, concrete, and stone, ensuring both functionality and striking visual impact.

For this modern entertainment hangar staircase, these possibilities came together to create a design that is as inspiring as it is practical.
Your Vision, Our Craft
If you're looking to transform your space with a staircase that blends innovation, artistry, and structural integrity, Babin Ironworks is ready to help. Contact us today to collaborate on your next project and discover the possibilities of custom steel staircases.



































